
位於新店大坪林捷運站後方靜巷的一樓老公寓,屋齡將近四十年,緊鄰熱鬧生活機能,卻有難得安靜的巷弄氛圍。
屋主是一對長時間在外工作的夫妻,希望回家後,不是各自關在房間,而是有一個明亮、好整理、能自然相處的小家庭空間。
全室以「明亮舒適」為主軸,選擇淺色木質調搭配電視牆仿水泥粉光質感,讓原本素白的空間多了一點沉穩與安定感,而不會顯得厚重。
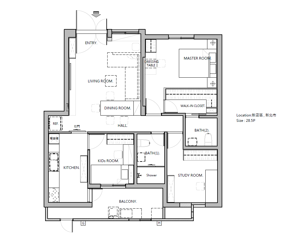
客廳與餐廳不再被切割成兩個獨立區塊,而是採用「客餐合一」的複合式配置。將餐桌直接併向沙發,一方面解決一般茶几高度過低、用餐必須頻繁彎腰的不便;另一方面也讓平日人少時,不需要離開客廳就能舒適用餐。
假日有朋友來訪時,只要將餐桌移出,即可轉換成多人聚會的彈性場域。小宅的每一坪,都真正服務日常使用,而不是只為了擺設存在。



主臥延續木質與中性色調,降低視覺干擾,讓睡眠空間維持安靜與放鬆。
在主臥內特別規劃了獨立更衣室,將衣物與飾品集中收納,減少外露雜物。更衣室與衛浴採「先進更衣室、再進衛浴」的順向動線安排,讓起床、更衣、盥洗變得自然順手,也避免一打開門就直接面對臥房的尷尬。


小孩房不到 3 坪,卻需要同時兼顧睡眠、收納與閱讀遊戲空間。透過床架與櫃體的一體規劃,將高處、角落與床邊都轉換為收納機會,把機能向立面與角落延伸,而不是把走道塞滿櫃子。
空間雖小,但收納量與使用彈性都被拉到最大,小房間也能成為孩子專屬、完整的生活場域。




大多數現代人白天都在外上班,真正全家待在一起的時間,其實只有晚上與假日。透過將餐桌融入客廳區、減少過多隔間、避免視覺死角,我們讓空間有更好的穿透感,也提高家人在同一個場域中活動的機率。
無論是在沙發聊天、在餐桌用餐,或是小孩在一旁玩玩具,都能保持視線與聲音的連結。家不只是被裝修完成的場景,而是讓相處變得更自然的地方。
如果你也有 20 坪左右的老公寓,想改善採光、動線與收納,同時保留家人互動的感覺,歡迎透過「線上諮詢」或官方 LINE 與我們聊聊。
我們會先從生活需求與預算範圍開始,一起找到適合你的改造方向。