這是一間屋齡超過四十年的公寓四樓,原本由男主人的父母居住。隨著父母即將搬入新購的電梯大樓,這間房子也正式交棒給年輕夫妻與10歲男孩,成為三人小家庭的新生活起點。
改造前室內以傳統木夾板隔間為主,不只隔音差、結構也脆弱;前後陽台長期堆放雜物,漏水狀況嚴重;動線混亂、室內梯踏距不合理且有安全疑慮,甚至存在不必要的架高木地板,讓空間更壓迫、更難整理。
我們以「靜謐日系質感」為方向:用更乾淨的線條、霧面與木質的層次,重新整理光線、動線與收納秩序,讓這間老屋回到明亮、好用、能長久生活的狀態。
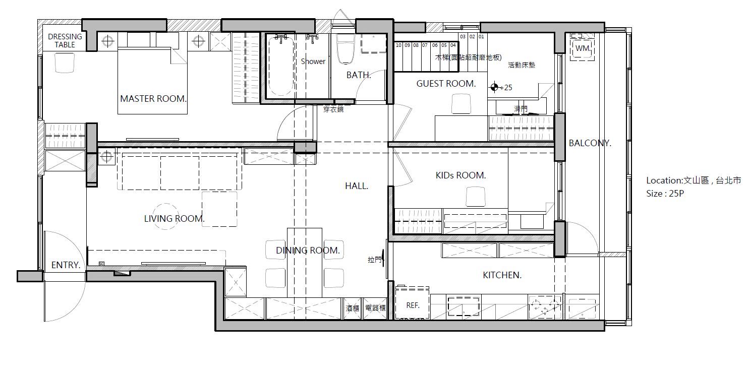
我們將入門後原本的前陽台納入室內使用,定義成落塵區,搭配頂天鞋櫃,把「換鞋、收納、回家置物」一次整理到位。
同時保留最大限度的窗戶採光,讓玄關不是暗角,而是家的第一道明亮緩衝。

老屋最常見的問題,是隔間把光線切碎、動線繞來繞去,一進門就覺得擁擠。這次我們把客廳與餐廳融合成完整的開放空間,讓視線一進門就能穿透到前陽台的光。
空間不靠華麗造型,而是靠比例、留白與材質層次:木質、霧面與柔和色階,讓整體更安定、也更耐看。




餐廳區做了一整排高低餐櫃,增加備餐與收納的平台尺度,用餐時不需要把桌面塞滿雜物。
同時規劃展示櫃,櫃體內左右加上鋁條燈,搭配鋁框玻璃門片:既能把收納藏好,也保留一小部分能展示藏品或家庭合照的角落,讓家有溫度而不凌亂。


我們把客廳的重點放在「視覺安定」:讓牆面更乾淨、比例更清楚,燈光與材質只做必要的層次,整體更耐看、也更符合日系靜謐的氣質。

女主人常下廚,因此在重新規劃格局時,我們退縮一小部分小孩房,換來廚房真正好用的尺度:走道兩側都有平台,備料、烹調、分盤的動作不再互相卡住。
後陽台基於原始結構與機能仍完整,只做局部調整:打通鄰近廚房的區段,增加廚房延伸使用面,讓家務動線更直接。

原本的三件式衛浴改為四件式,新增浴缸,回應男女主人「下班後能泡澡、把疲勞放掉」的期待。
在有限尺度裡,把乾區、淋浴與浴缸的使用節奏整理清楚,讓每天都能順順用、也維持乾淨好整理的狀態。

主臥因浴室機能升級(新增浴缸)而壓縮了一點面積,因此我們把原本的前陽台納入使用,但不做完全封閉,保留大面窗採光。
在增加收納與女主人梳妝台的同時,白天自然光仍能完整灑入臥室,讓主臥維持日系住宅最重視的「明亮與安靜」。




小孩房雖因廚房擴增而略為犧牲,但仍保留完整單人床、衣櫃、書桌與桌上收納櫃。規劃時也積極讓孩子表達意見,讓配色與質感能陪他從10歲一路走到青少年、甚至更成熟的階段。
「房間不只是一個現在好看」,而是能承接未來生活的空間。

舊屋翻新最難的,從來不是做出「新」,而是把原本的破碎與混亂,重新梳理成一套可長久生活的秩序。
我們把採光留住,把動線變簡單,把收納藏進系統裡,讓家在視覺上更安靜、在使用上更順手。
這間承接父母的房子,也因此真正成為三人小家庭的新起點。
如果你也有 20–30 坪的老公寓,面臨漏水、隔間老舊、動線不順與收納爆量的問題,想在「實用」的前提下把質感拉起來,歡迎透過線上諮詢或官方 LINE 與我們聊聊。
我們會先從生活需求與預算邏輯開始,幫你把老屋整理成可以住很久的家。